Willow Elementary School
Architect: Quattrocchi Kwok Architects
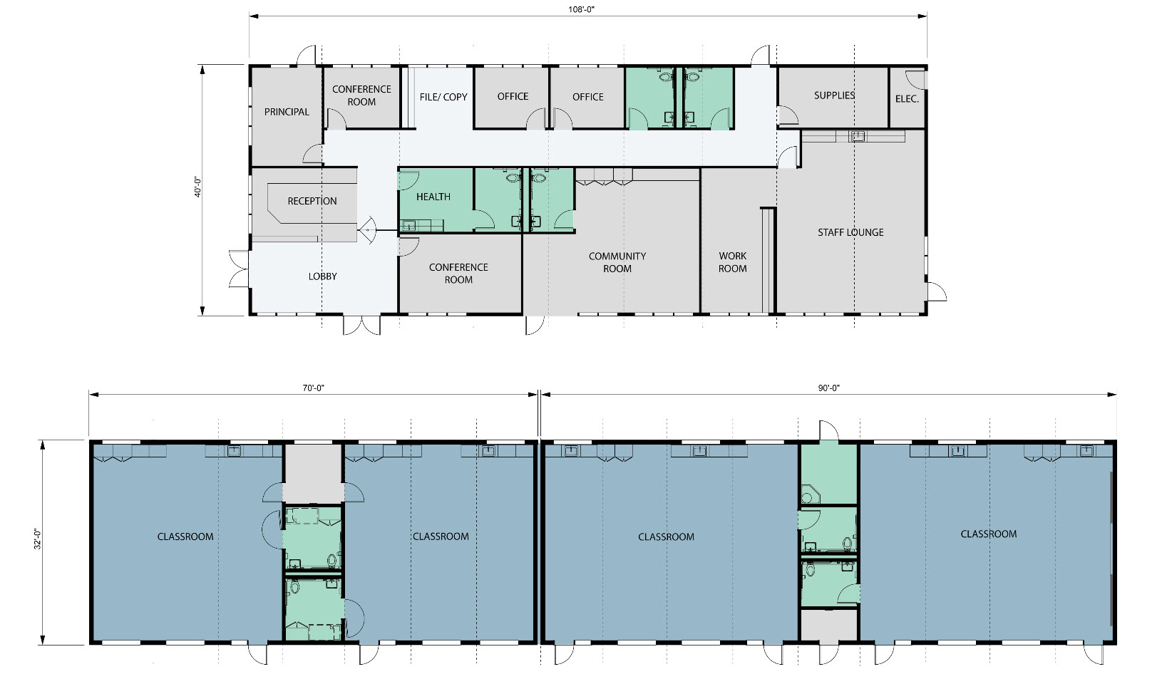
When Napa Valley USD needed new buildings to accommodate students from El Centro Elementary and Salvador Elementary, they opted to combine two schools into one comprehensive learning environment. To meet the challenge, the district partnered with Enviroplex and Quattrocchi Kwok Architects to design and construct two new classroom buildings, a new kindergarten wing, and a new administration building. The result, a new school with a new name, Willow Elementary School.
Project Overview
The combined 20,640 square feet of new space is constructed from high quality, eco-friendly materials. The buildings are both healthy and energy efficient, with elevated ceilings and clerestory windows that maximize daylight harvesting. High performance HVAC systems circulate fresh, filtered air throughout the adaptable space. Keeping as much of the original landscaping intact, the Daylight Classrooms wrap around a centralized courtyard, providing indoor/outdoor learning opportunities for all ages.
Key Building Features
- Floor to ceiling height of 15’
- Interactive learning boards
- Interior HVAC units
- Long-lasting concrete sub-floors with VCT flooring
- Pendent hung high efficiency lighting
- Clerestory windows
- Mechanical roller shades
- 2:12 mono-slope roof
- Casework
- 3-coat stucco
Administration Building Features
- Custom windows
- Custom-designed VRV HVAC system
- Long-lasting concrete sub-floors
- Low-maintenance carpet tiles
- Environmentally friendly ceramic tile
- Fire-resistant Gypsum Board ceilings in restrooms
- Detached 3:12 pitched roof with California hip roof at entrance
- Sturdy, energy efficient roller shades
From Our Clients
“It is so great to see all of our children back at school. I really did miss them over the summer! And it is an extra special treat that our children are now in classrooms that are much more conducive for learning. The favorite comment from the children is, ‘the bathrooms are so clean and there’s green handles for the flushers.’ You have to love children’s expressions; I smile all day long.”
“The Evergreen School District has used Enviroplex buildings for over ten years. We have purchased over 150 classrooms, bathrooms, and library buildings in various configurations. The newer configurations with pitched metal roofs, stucco-like finish, thicker installation, and internal HVAC units have been well received by our teachers and community. We also appreciate Enviroplex’s commitment to deliver the buildings on time for our accelerated eight-week summer construction schedule. During the last two years we have purchased 39 units, and they were all received during the one week window we gave Enviroplex.”
“Our students and teachers are truly enjoying and appreciating your classrooms. Enviroplex delivered this project as promised, on time, per specification and with minimal change orders. I realize how difficult this can be on a multi-million dollar project. We are entirely satisfied with the feel and sound quality of your concrete paneled floor system. I have heard zero complaints from our “1st Floor Teachers”. Thank you again for a very favorable construction experience.”
“We are thrilled with the result of our beautiful renovation. We now have 5 new classrooms to replace our ‘1962’ portables and trailer. It has been exhilarating to watch the weekly progress this summer. Our landscaping, classroom and parking lot makeover has greatly improved our community school.”
