Franklin Elementary School
Architect: Sugimura Finney Architects
Franklin-McKinley School District has delivered quality education dating back to 1868, when it is reported that they opened the doors of their first school. When they recognized the need for facility modernization, they opted for modular delivery to not only improve the facilities with modern instructional delivery, but also provide the opportunity to reduce energy and water consumption, improve air quality and increase natural lighting.
Project Overview
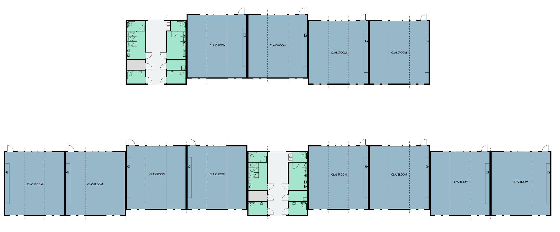
The District worked with Enviroplex to deliver a state-of-the-art kindergarten building as well as classroom wings and an administration building on their Franklin Elementary School Campus.
In partnership with Sugimura Finney Architects, the buildings were designed with elevated ceilings and oversized glazing to allow for an abundance of natural light. Completed in the fall of 2017, the new buildings consist of 24,640 square feet of new space suitable for today’s advanced educational environments.
Client
Franklin-McKinley School District
Location
San Jose, CA
Project Scope and Size
State-of-the-art Kindergarten Building, Classroom wings and an Administration building.
24,640 square feet
Key Building Features
- 10′ finished floor to ceiling height
- Concrete sub-floors
- High efficiency LED lighting
- Detached 2:12 bi-pitched roof w/ 5′ overhangs
- Custom colored roof panels
- Staggered, off-set modules
- Commercial grade, high efficiency windows
- Centralized multi-fixture restroom with integrated
over-framed tower feature - Individually controlled HVAC mini-split systems
- 3-coat stucco with thin brick veneer accent
- Premium wall coverings
Classroom Building Features
- Interior high efficiency 2-stage HVAC units
- Custom Learning Walls
- Casework and plumbing
From Our Clients
“It is so great to see all of our children back at school. I really did miss them over the summer! And it is an extra special treat that our children are now in classrooms that are much more conducive for learning. The favorite comment from the children is, ‘the bathrooms are so clean and there’s green handles for the flushers.’ You have to love children’s expressions; I smile all day long.”
“The Evergreen School District has used Enviroplex buildings for over ten years. We have purchased over 150 classrooms, bathrooms, and library buildings in various configurations. The newer configurations with pitched metal roofs, stucco-like finish, thicker installation, and internal HVAC units have been well received by our teachers and community. We also appreciate Enviroplex’s commitment to deliver the buildings on time for our accelerated eight-week summer construction schedule. During the last two years we have purchased 39 units, and they were all received during the one week window we gave Enviroplex.”
“Our students and teachers are truly enjoying and appreciating your classrooms. Enviroplex delivered this project as promised, on time, per specification and with minimal change orders. I realize how difficult this can be on a multi-million dollar project. We are entirely satisfied with the feel and sound quality of your concrete paneled floor system. I have heard zero complaints from our “1st Floor Teachers”. Thank you again for a very favorable construction experience.”
“We are thrilled with the result of our beautiful renovation. We now have 5 new classrooms to replace our ‘1962’ portables and trailer. It has been exhilarating to watch the weekly progress this summer. Our landscaping, classroom and parking lot makeover has greatly improved our community school.”
