Petaluma Child Development Center
Located at the United States Coast Guard’s Training Center Petaluma in the small, rural community of Two Rock, California. The new Child Development Center opened its doors in January 2011 and offers educational programs to the children of those preparing for careers in Coast Guard operations.
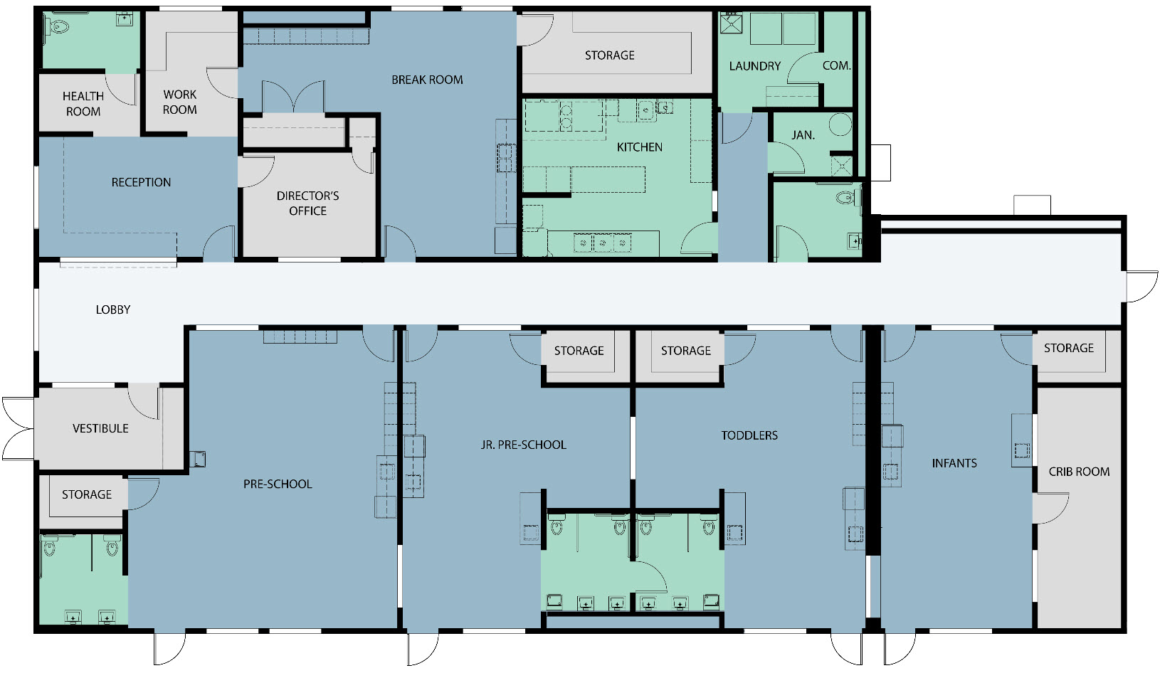
Project Overview
Built by Enviroplex in partnership with Coast Guard stakeholders and Centerline Design LLC, the new back-to-back structure utilizes design features including oversized interior windows that allow for visual supervision and allow children to be aware of others and colorful VCT flooring in large, repeated patterns that de-emphasize the tunnel appearance of the long, double-loaded corridors.
Standard MDO siding with a blue-and-white paint scheme complement the nearby base housing nestled in the surrounding wooded foothills.
The Child Development Center also features operable tubular skylights for natural lighting, a bright and welcoming reception area with custom casework, ADA restroom facilities with low-flow plumbing fixtures and a fully equipped kitchen with a stainless steel commercial vent hood and appliances.
Client
United States Coast Guard District
Location
Petaluma, Two Rock, California
Project Scope and Size
Twelve 12’ x 40’ modules
5,760-square-foot back-to-back structure
Key Features
- Exterior awning windows
- Oversized interior windows
- Double-loaded corridors
- Custom casework
- Steel double-doors at entry with full-lite windows
- Operable tubular skylights
- Colorful custom-patterned VCT flooring
- 9-foot interior ceiling height
- Interior ADA-accessible drinking fountains
- Pinch-free hinges on all doors
- Fire sprinkler system
- Lighted exit signs
- Washable and durable wall finishes
- Back-to-back shed roofs for a bi-pitch roofing system
- Finished soffits
From Our Clients
“It is so great to see all of our children back at school. I really did miss them over the summer! And it is an extra special treat that our children are now in classrooms that are much more conducive for learning. The favorite comment from the children is, ‘the bathrooms are so clean and there’s green handles for the flushers.’ You have to love children’s expressions; I smile all day long.”
“The Evergreen School District has used Enviroplex buildings for over ten years. We have purchased over 150 classrooms, bathrooms, and library buildings in various configurations. The newer configurations with pitched metal roofs, stucco-like finish, thicker installation, and internal HVAC units have been well received by our teachers and community. We also appreciate Enviroplex’s commitment to deliver the buildings on time for our accelerated eight-week summer construction schedule. During the last two years we have purchased 39 units, and they were all received during the one week window we gave Enviroplex.”
“Our students and teachers are truly enjoying and appreciating your classrooms. Enviroplex delivered this project as promised, on time, per specification and with minimal change orders. I realize how difficult this can be on a multi-million dollar project. We are entirely satisfied with the feel and sound quality of your concrete paneled floor system. I have heard zero complaints from our “1st Floor Teachers”. Thank you again for a very favorable construction experience.”
“We are thrilled with the result of our beautiful renovation. We now have 5 new classrooms to replace our ‘1962’ portables and trailer. It has been exhilarating to watch the weekly progress this summer. Our landscaping, classroom and parking lot makeover has greatly improved our community school.”
