Mountain View Childcare Center
Architect: Bill Gould Design Art & Architecture
Construction Management: Turner Construction
The City of Mountain View Childcare Center is the result of collaborative efforts initiated to answer a need for additional quality learning environments for young children within the community.
Project Overview
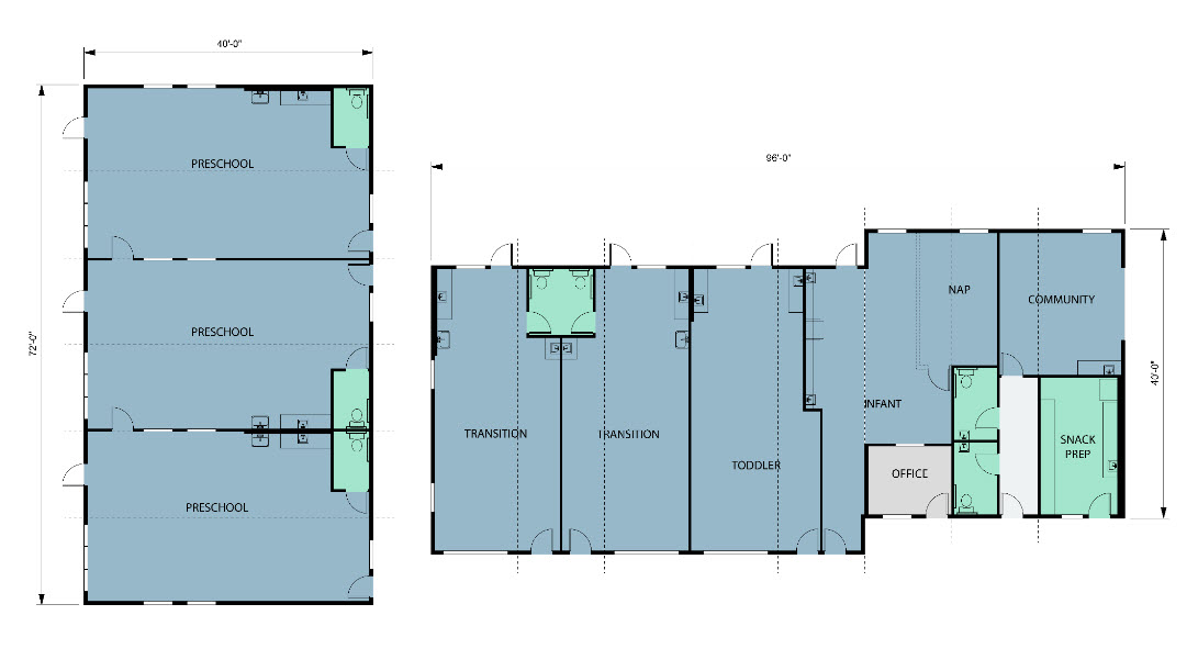
Designed as a “hybrid,” the building integrates modular and site construction, allowing the newly built structures to blend with the surrounding park and Senior Center, while also providing maximum square footage for the City’s budget dollars.
The Enviroplex built, modular structure consists of a 96′ x 40′ main wing and a 72′ x 40′ preschool wing including classroom space, administrative space, staff and student restrooms and a snack preparation area. The interior boasts such features as washable tackboard walls, interior porthole windows, and custom casework.
Client
City of Mountain View
Location
Located within Rengstorff Park in the City of Mountain View
Project Scope and Size
A 96′ x 40′ main wing and a 72′ x 40′ preschool wing
A 6,720 square foot building
Key Building Features
- Single slope, shed roof design with site applied
“Duro-Last” single ply membrane roofing (installed by others) - Concrete stem wall foundations
- Horizontal exterior lap siding (installed by others)
- Exterior “Hopper” windows
- Combination of roof mount HVAC and interior
Bard QTEC heat pumps - Overhang of modular building become
fire rated corridor - 9 foot interior ceiling height
- Interior “porthole” windows
- WIC grade, custom casework
- Infant room including nap area separated from play area by use of a pony wall capped with decorative plastic laminate
- Director’s office, Community Room and Toddler classrooms
- Preschool classrooms with Kohler wash sinks and restrooms
- Snack preparation room with plumbing
considerations for washer/dryer unit, refrigerator and dishwasher - Random pattern, vinyl composite tile and carpet flooring.
From Our Clients
“It is so great to see all of our children back at school. I really did miss them over the summer! And it is an extra special treat that our children are now in classrooms that are much more conducive for learning. The favorite comment from the children is, ‘the bathrooms are so clean and there’s green handles for the flushers.’ You have to love children’s expressions; I smile all day long.”
“The Evergreen School District has used Enviroplex buildings for over ten years. We have purchased over 150 classrooms, bathrooms, and library buildings in various configurations. The newer configurations with pitched metal roofs, stucco-like finish, thicker installation, and internal HVAC units have been well received by our teachers and community. We also appreciate Enviroplex’s commitment to deliver the buildings on time for our accelerated eight-week summer construction schedule. During the last two years we have purchased 39 units, and they were all received during the one week window we gave Enviroplex.”
“Our students and teachers are truly enjoying and appreciating your classrooms. Enviroplex delivered this project as promised, on time, per specification and with minimal change orders. I realize how difficult this can be on a multi-million dollar project. We are entirely satisfied with the feel and sound quality of your concrete paneled floor system. I have heard zero complaints from our “1st Floor Teachers”. Thank you again for a very favorable construction experience.”
“We are thrilled with the result of our beautiful renovation. We now have 5 new classrooms to replace our ‘1962’ portables and trailer. It has been exhilarating to watch the weekly progress this summer. Our landscaping, classroom and parking lot makeover has greatly improved our community school.”
